Bratislava-Staré Mesto

Unikátny zrekonštruovaný byt vhodný na Airbnb prenájom s výhľadom na Hrad

Ponúkame vám exkluzívne na predaj svetlý a kompletne zrekonštruovaný 2,5-izbový byt vhodný aj na krátkodobý prenájom (Airbnb) v tehlovom bytovom dome na Streleckej ulici, vo vyhľadávanej a prestížnej lokalite Palisády, priamo pod Bratislavským hradom a Národnou radou Slovenskej republiky.

Byt sa nachádza na 1. nadzemnom podlaží komorného trojpodlažného domu s malým počtom bytov, čo zaručuje tiché bývanie s vysokou mierou súkromia. Strelecká ulica je málo frekventovaná, čo dodáva bývaniu v centre mesta pokojný charakter – ideálne aj pre náročných turistov či biznis klientelu.

ZÁKLADNÁ CHARAKTERISTIKA:

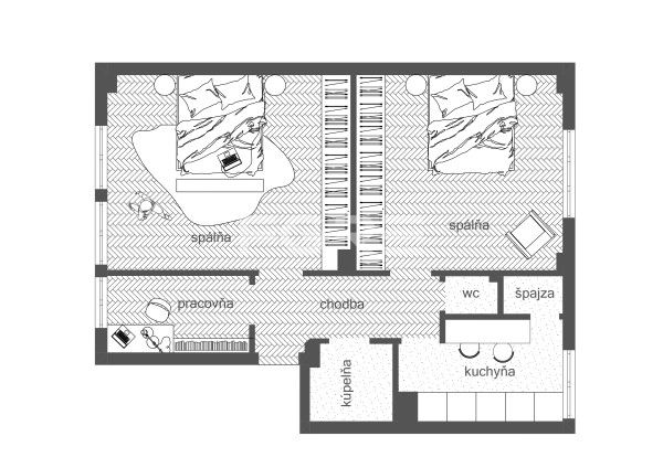
- Rozloha bytu: 61 m²

- Dispozícia: 2,5-izbový byt

- Poschodie: 1/3 (pod bytom je ešte byt na vyvýšenom prízemí)

- Tehlový bytový dom bez výťahu

- Samostatná kuchyňa prepojená s obývacou izbou

- 1 kúpeľňa a 1 samostatné WC

- Pivnica v suteréne

- Kompletná rekonštrukcia (bez zariadenia)

TOP 5 VÝHOD:

- Prémiová poloha v srdci Palisád – jedinečná adresa v priamom susedstve Bratislavského hradu a Národnej rady

- Tichá a pokojná ulica – ideálna kombinácia centrálnej lokality a súkromia

- Kompletná rekonštrukcia – byt je komplente zrekonštruovaný a pripravený na zariadenie podľa vlastných predstáv

- Výnimočný investičný potenciál pre Airbnb – poloha, dispozícia aj charakter domu robia z bytu ideálnu nehnuteľnosť na krátkodobý prenájom

- Komorný bytový dom – iba 3 podlažia a nízky počet bytov poskytujú diskrétnosť a príjemnú atmosféru

LOKALITA A PARKOVANIE:

Byt sa nachádza na prestížnej Streleckej ulici v lukratívnej lokalite Palisád, ktorá je jednou z najžiadanejších v Starom Meste Bratislavy. Lokalita ponúka výnimočnú kombináciu pokojného bývania v úplnom centre mesta s výhľadmi na Bratislavský hrad a Národnú radu.

V bezprostrednej blízkosti sa nachádza kompletná občianska vybavenosť – reštaurácie, kaviarne, galérie, obchody, historické pamiatky aj dôležité administratívne inštitúcie. Lokalita je skvelo dostupná MHD aj pešo.

Veľkou výhodou je možnosť parkovania priamo pod bytovým domom, čo je v tejto časti mesta veľmi vzácne.

NÁZOR FEDORS GROUPU:

Tento 2,5-izbový byt na Streleckej ulici je výnimočnou príležitosťou pre tých, ktorí hľadajú prémiové bývanie s charakterom historického centra. Vďaka kompletnej rekonštrukcii a nezariadenému stavu je vhodný na okamžité využitie ako investičný projekt – či už pre dlhodobý prenájom, alebo krátkodobý prenájom formou Airbnb.

Lokalita, tichá atmosféra, reprezentatívne okolie a možnosť parkovania priamo pri dome robia z tejto nehnuteľnosti atraktívnu voľbu pre investorov, ktorí hľadajú stabilnú a lukratívnu nehnuteľnosť v centre Bratislavy.

Chcem hypotéku

Táto stránka je chránená Google reCAPTCHA v zmysle Pravidiel ochrany súkromia a Zmluvných podmienok.

Mám záujem

Táto stránka je chránená Google reCAPTCHA v zmysle Pravidiel ochrany súkromia a Zmluvných podmienok.

Lokalita

 

Nepremeškajte ponuku