Ponúkame vám exkluzívne na predaj dizajnový 3-izbový byt s veľkou terasou v jedinečnom projekte Apollo Residence v srdci moderného centra Bratislavy.
Tento byt s premyslenou dispozíciou, nadštandardne vysokými stropmi a terasou orientovanou do tichého vnútrobloku predstavuje prémiové bývanie v projekte, ktorý spája komfort, inovatívne technológie a moderný dizajn.
ZÁKLADNÁ CHARAKTERISTIKA:
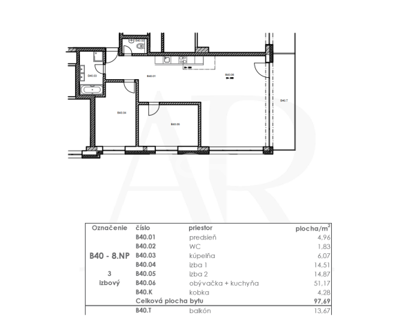
– Celková výmera: 98 m² interiér + 14 m² terasa
– Výška stropov: až 3,5 m
– Moderná tehlová novostavba
– Výťah: 2 osobné + 1 nákladný
– Stropné chladenie, podlahové kúrenie, tepelné čerpadlá
– Príprava pre inteligentnú elektroinštaláciu
– Pivničná kobka na podlaží
– Podzemné garážové státia
– Reprezentatívna recepcia s 24/7 službou
– Kamerový systém a vysoký bezpečnostný štandard
TOP 5 VÝHOD:
– Priestrenný 3-izbový byt s ideálnou dispozíciou – svetlý priestor s terasou do tichého vnútrobloku
– Vysoké stropy 3,5 m a veľkoformátové okná – pocit vzdušnosti a dostatok prirodzeného svetla
– Prémiové technológie – zdravé bývanie vďaka stropnému chladeniu, podlahovému kúreniu a špičkovej akustike
– Elegantné spoločné priestory a recepcia ako v hoteli – 24/7 služby, bezpečnosť a komfort bez kompromisov
– Výborná poloha v downtown centre – všetko potrebné doslova na pár krokov: obchody, služby, parky aj centrum mesta
LOKALITA A PARKOVANIE:
Projekt Apollo Residence sa nachádza v srdci nového bratislavského downtownu v dynamicky sa rozvíjajúcej lokalite, ktorá ponúka kompletnú občiansku vybavenosť a skvelé prepojenie na všetky časti mesta. V pešej dostupnosti sú obľúbené gastro prevádzky, obchodné domy, kultúrne priestory, školy, ako aj oddychové zóny pri Dunaji.
K bytu je možné dokúpiť parkovacie státie v podzemnej garáži s priamym prístupom výťahom.
NÁZOR FEDORS GROUP:
Tento 3-izbový byt v Apollo Residence je ideálnym riešením pre mestské bývanie novej generácie. Spojenie kvalitného dizajnu, najmodernejších technológií a špičkovej lokality vytvára dokonalý priestor pre život bez kompromisov. Prémiový štýl bývania, ktorý vás osloví na prvý pohľad.