Bratislava-Staré Mesto

Luxusný 5-izbový penthouse s terasou a vysokými stropmi v centre Bratislavy

Ponúkame vám exkluzívne na predaj veľkorysý 5-izbový penthouse s terasou, vysokými stropmi a výnimočnou atmosférou v prémiovom rezidenčnom projekte Apollo Residence, ktorý sa nachádza v novovznikajúcom centre Bratislavy – v oblasti moderného downtownu.

Táto jedinečná nehnuteľnosť ponúka nadštandardné bývanie s maximálnym dôrazom na dizajn, technológie a komfort. 

ZÁKLADNÁ CHARAKTERISTIKA:

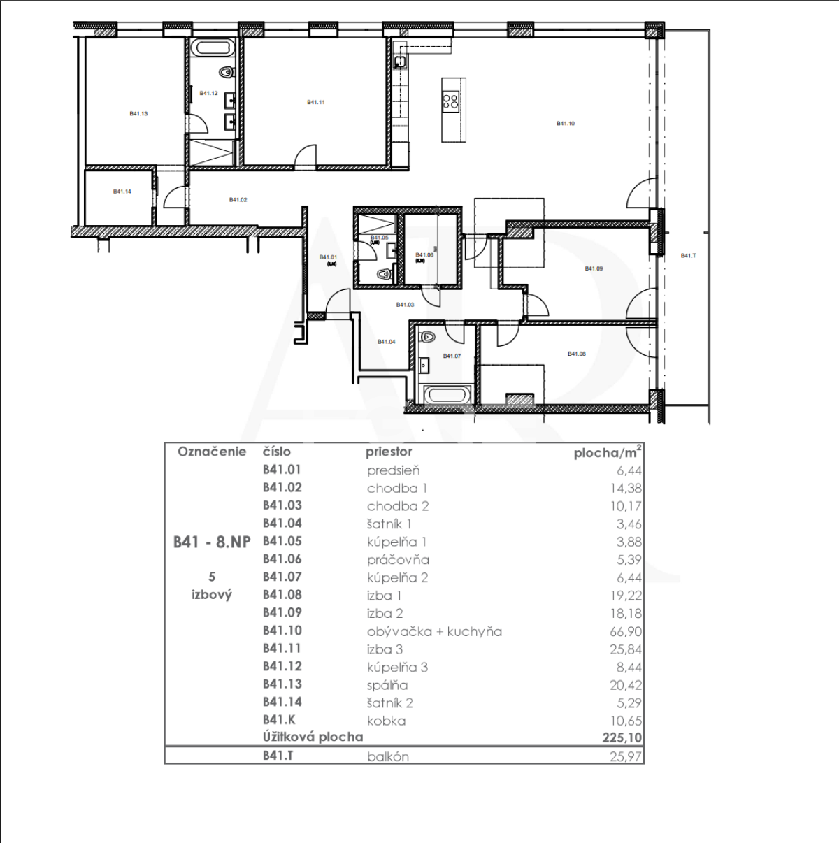
- Celková rozloha: 251 m²

- Dispozícia: 5-izbový penthouse

- Poschodie: najvyššie 

- Priestranné izby s vysokými stropmi až 3,5 m

- Moderná tehlová novostavba 

- Výťah: 2 osobné + 1 nákladný

- Stropné chladenie, tepelné čerpadlá, podlahové kúrenie

- Inteligentná elektroinštalácia – príprava

- Pivničná kobka na rovnakom podlaží

- Podzemné parkovanie v garáži

- Služby 24/7 recepcie a bezpečnostný systém

TOP 5 VÝHOD:

- Výnimočný penthouse v centre diania – veľkometrážny 5-izbový byt s terasou na najvyššom podlaží prestížneho projektu

- Vysoké 3,5 m stropy a veľkoformátové okná – pocit vzdušnosti, veľkorysý priestor a prirodzené svetlo počas celého dňa

- Prémiové technológie a zdravé bývanie – stropné chladenie, podlahové kúrenie, tepelné čerpadlá a akustické priečky pre maximálny komfort

- Recepcia ako v 5 hoteli* – 24/7 služba, bezpečnostný systém, reprezentatívne spoločné priestory a možnosť room servisu

- Atraktívna lokalita v downtowne – všetko v pešej dostupnosti: reštaurácie, kultúra, obchody, školy, parky aj nábrežie Dunaja

LOKALITA A PARKOVANIE:

Apollo Residence sa nachádza v dynamicky sa rozvíjajúcej časti Bratislavy v downtown centre, ktoré v sebe spája bývanie, prácu aj oddych. V blízkom okolí nájdete top gastro prevádzky, reštaurácie, obchodné centrá, kultúru aj zeleň. Len pár minút chôdze vás delí od promenády pri Dunaji, Sadu Janka Kráľa alebo historického centra.

Výnimočnou výhodou je priame prepojenie bytu s garážou v podzemí.

NÁZOR FEDORS GROUP:

Tento penthouse v Apollo Residence je ideálnou voľbou pre tých, ktorí hľadajú kombináciu priestoru, dizajnu a komfortu na najvyššej úrovni. Vďaka svojej lokalite, technológiám a hotelovým službám predstavuje rezidencia unikátne bývanie bez kompromisov. Výnimočný projekt pre výnimočných ľudí.

Chcem hypotéku

Táto stránka je chránená Google reCAPTCHA v zmysle Pravidiel ochrany súkromia a Zmluvných podmienok.

Mám záujem

Táto stránka je chránená Google reCAPTCHA v zmysle Pravidiel ochrany súkromia a Zmluvných podmienok.

Lokalita

 

Nepremeškajte ponuku